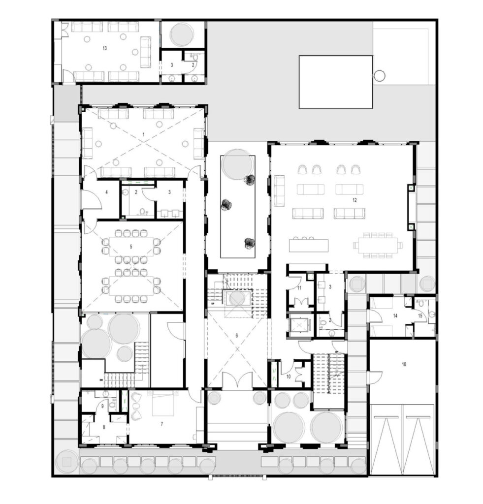
HSA VIlla
“Timeless Elegance, Redefined for Today”
2024
Architecture, Interior Architecture

HSA Villa
Typologies:
Residential
Status:
Construction
Location:
Abu Dhabi, UAE
Year:
2022










